ARTTU Pracownia Architektury
Pomiń nawigacje
  • start
  • projekty
  • konserwatorskie
  • archiLektura
  • publikacje
  • arttu
  • kontakt
 
zanko 0
przed przebudową
zanko wnetrze Page 01
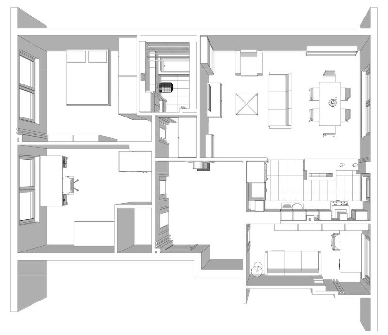
po przebudowie; ostatecznie zmieniono zagospodarowanie pokoi - gabinet po prawej jest pokojem córki, sypialnia jest gabinetem, pokój córki - sypialnią :)
P3311782
P3311796
P3311858.JPG
największy pokój - obecnie powiększony o przestrzeń za ścianą
P3311787
kuchnia - obecnie pokój córki
P3311790.JPG
P3311803
P3311805.JPG
IMG 0752.JPG
potworny podciąg w poprzek przedpokoju
IMG 0743.JPG
okno w dawnej kuchni

o ile nie zaznaczono inaczej wszystkie materiały tu zawarte: © 2001 - 2026 arttu