ARTTU Pracownia Architektury
Pomiń nawigacje
start
projekty
konserwatorskie
archiLektura
publikacje
arttu
kontakt
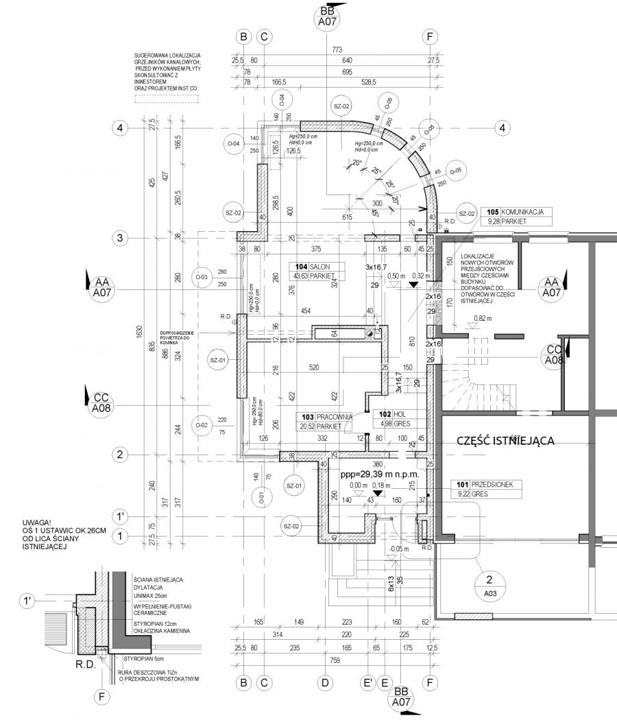
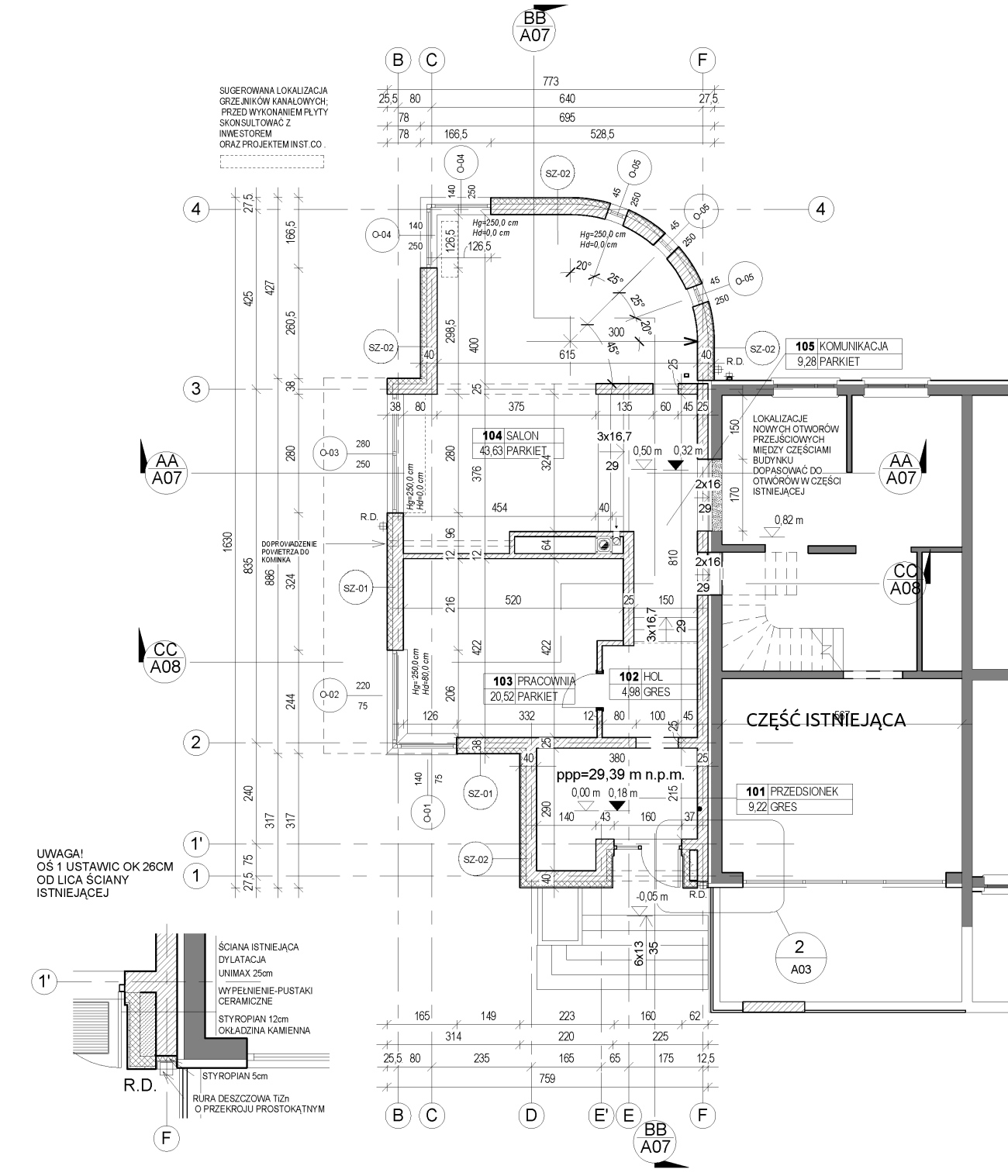
rzut parteru
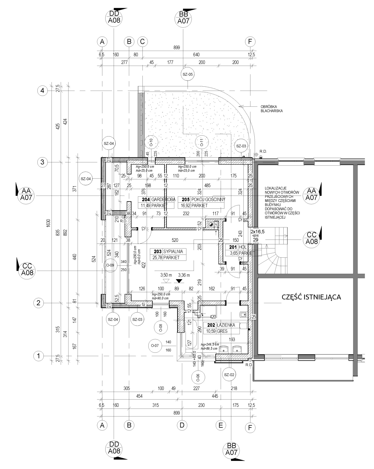
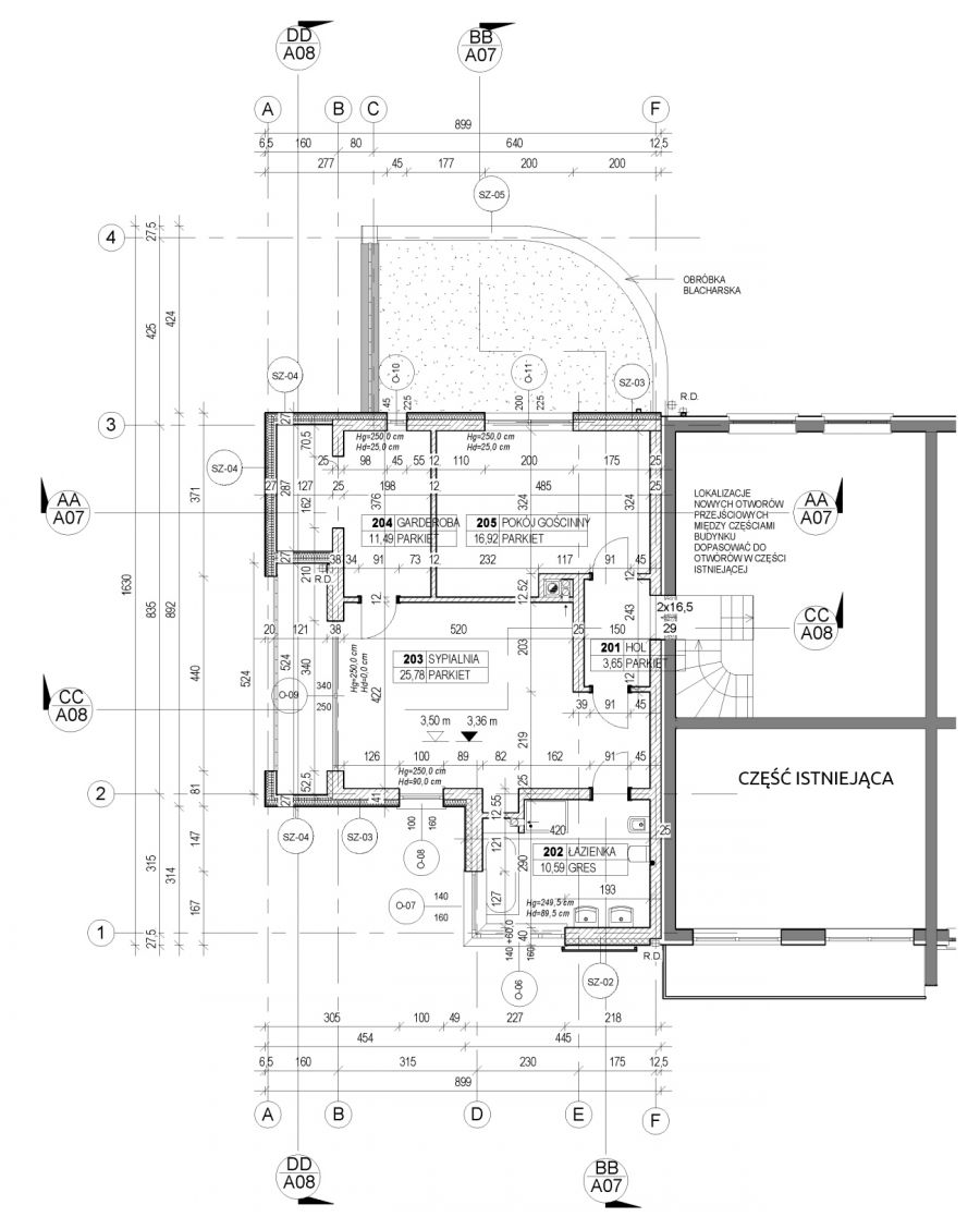
rzut piętra
widoki
pierwsze szkice - rysunki odręczne Maria Falkiewicz