ARTTU Pracownia Architektury
Pomiń nawigacje
  • start
  • projekty
  • konserwatorskie
  • archiLektura
  • publikacje
  • arttu
  • kontakt
 

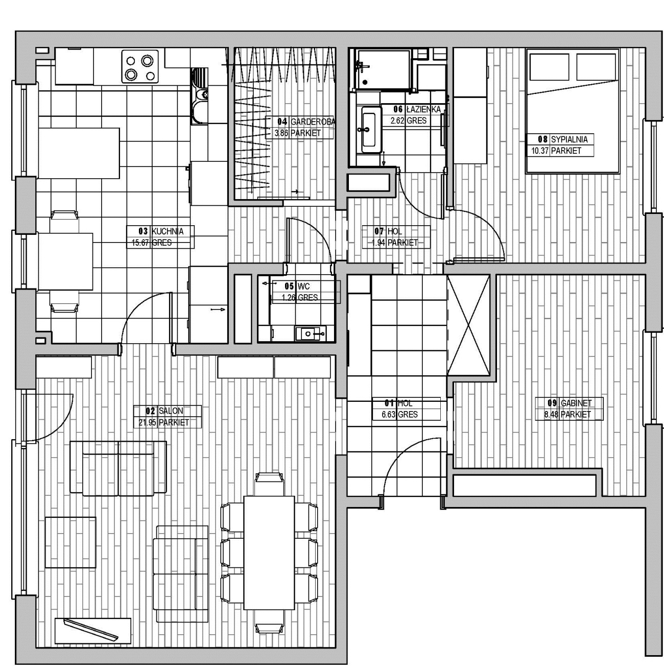
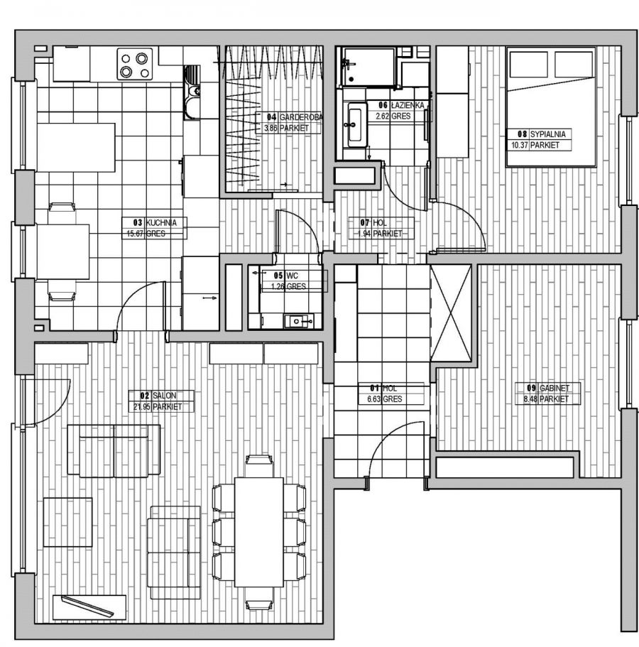
MIESZKANIE ZDUŃSKA WOLA

Projekt remontu mieszkania około 75m2 z rearanżacją układy funkcjonalego.

Otwarcie kuchni na salon, zmniejszenie kuchni i wyodrębnienie garderoby to główne załozenia projektu.

 

Projekt - 2012

Realizacja - 2013

powrót

projekt  15 end
i po..
projekt  0
stan przed remontem
IMG 4098.JPG
IMG 4097.JPG
IMG 4100.JPG
IMG 4101.JPG
IMG 4105.JPG
IMG 4108.JPG
IMG 4110.JPG
IMG 4112.JPG

o ile nie zaznaczono inaczej wszystkie materiały tu zawarte: © 2001 - 2026 arttu