OPIS
Istniejący obiekt wybudowany został na przełomie XIX i XX wieku.
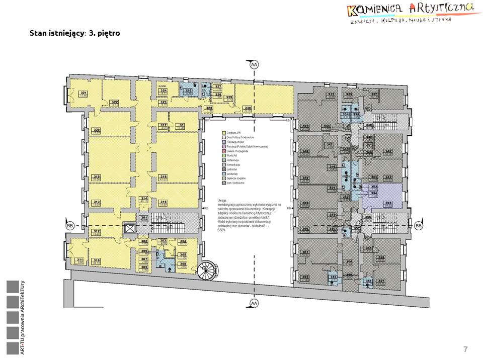
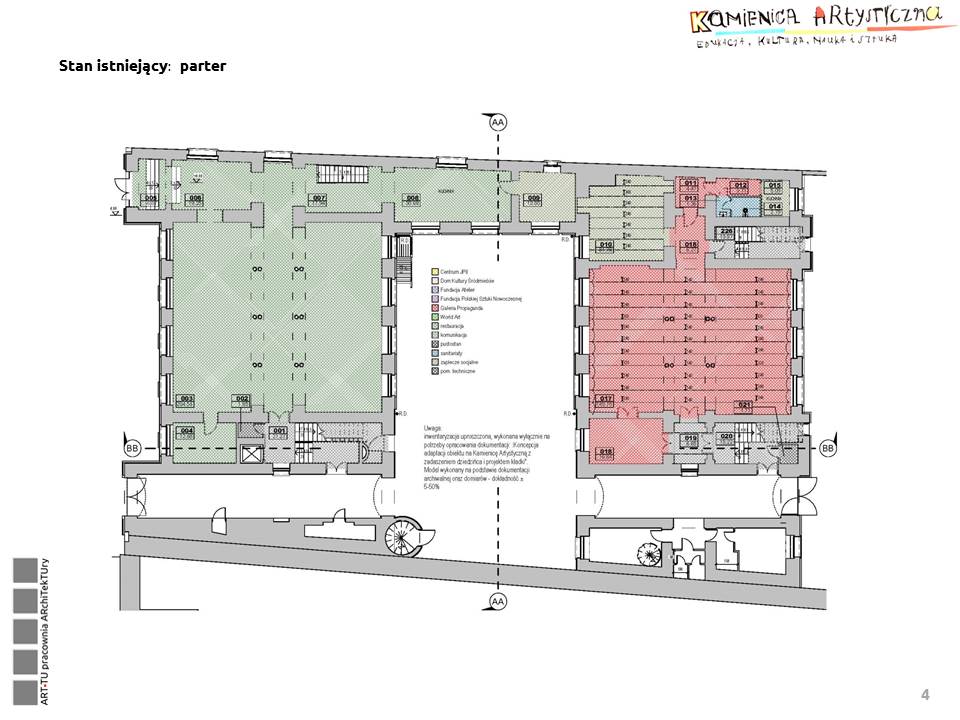
Składa się z trzech części: frontowej - północnej, południowej o zbliżonej kubaturze, oraz zamykającej układ oficyny bocznej o wąskim trakcie, od strony wschodniej.
Przytaczając zapisy w udostępnionej dokumentacji: „fasady o spokojnej eleganckiej architekturze nawiązują do historycznych form renesansu francuskiego (elewacje) i włoskiego (wnętrza bramy)…(..) jest to obiekt murowany, trzypiętrowy, całkowicie podpiwniczony z częściowo użytkowym poddaszem w dolnej części mansardowego dachu. Więźba dachowa drewniana kleszczowo-płatwiowa. Pokrycie blachą (od strony ulicy płytki romboidalne, od strony dziedzińców – arkuszową).”
Początkowa funkcja obiektu – biurowa.
Po 1958r obiekt przebudowano na cele mieszkalne. Aktualnie część frontowa oraz oficyna boczna użytkowane są jako pomieszczenia biurowe z funkcją kultury, oraz lokal gastronomiczny. Oficyna tylna, od południa, w większości opuszczona, poza 3 lokalami biurowymi, oraz parterem użytkowanym przez galerię sztuki.
Stan techniczny istniejącego budynku jest dobry. Nie stwierdza się w nim nadmiernego zawilgocenia, oraz oznak korozji biologicznej. Elementy konstrukcyjne są w stanie technicznym dobrym – nie występują zarysowania i pęknięcia na istotnych elementach konstrukcyjnych.
Elewacje oraz dach obiektu były remontowane w latach 2006-2010.
Wnętrze:
Stan wnętrz zróżnicowany – część lokali niedawno odnowiona i wyraźnie zadbana; część (pustostany) - do kompleksowego remontu.
Z uwagi na planowane zmiany w zakresie zagospodarowania obiektu, projektuje się także przebudowę wnętrz oraz zmiany w instalacji.
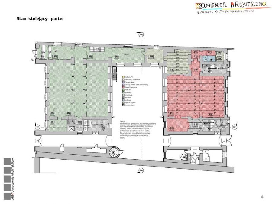
Wewnątrz obiektu znajduje się dziedziniec, użytkowany wyłącznie latem, głównie przez restaurację zlokalizowaną w południowo-wschodniej części parteru.
Podstawowym problemem obiektu jest niedostosowanie dla osób z niepełnosprawnością. W klatce pierwszej znajduje się winda (wymieniona na nową kilka lat temu, ale nie spełniająca wymogów wymiarów minimalnych dla obsługi osób z niepełnosprawnością), dojeżdżająca tylko do trzeciego piętra, oraz niedostępną dla osób na wózkach/z wózkami, z poziomu terenu. Brakuje także toalet dla osób z niepełnosprawnością a istniejące toalety o zazwyczaj przestarzałym wyposażeniu i niespełniające wymogów „Rozporządzenia Ministra Infrastruktury w sprawie warunków technicznych, jakim powinny odpowiadać budynki i ich usytuowanie.”.
Założenia do projektu
Z „Wytycznych do wykonania architektonicznego projektu koncepcyjnego przebudowy i adaptacji budynku przy Foksal 11 w Warszawie na Kamienicę Artystyczną – budynek służący instytucjom kultury”:
Głównym celem powołania Kamienicy Artystycznej jest rewitalizacja zabytkowej kamienicy przy ul. Foksal 11, stworzenie miejsca aktywności kulturalnej – generatora nowych zjawisk artystycznych, stworzenie platformy wymiany między środowiskiem artystycznym i mieszkańcami miasta, stworzenie nowej przestrzeni dla edukacji artystycznej, promocja społecznej funkcji sztuki, zapobieganie patologiom społecznym.
Kamienicę ma cechować otwartość dla wszystkich mieszkańców miasta, ma być dostępna i przyjazna dla osób niepełnosprawnych. Kamienica winna spełniać funkcję popularyzatorską mającą na celu upowszechnianie wiedzy o zabytkach, oraz ich znaczeniu dla historii i kultury.
Pomieszczenia budynku mają być wynajmowane i udostępniane instytucjom kultury, galeriom, pracowniom twórczym, pracowniom plastycznym, muzycznym, teatralnym, instytucjom zajmującym się edukacją artystyczną itp.
Podstawowe działania planowane w ramach generalnego remontu obiektu:
1. Budowa dźwigu osobowego na dziedzińcu obiektu
2. Przebudowa dźwigu osobowego w klatce nr 1
3. Zadaszenie dziedzińca
4. Montaż dodatkowych, ciepłych drzwi w przejściach bramnych
5. Przebudowa pomieszczeń parteru, dostępnych z drugiego przejścia bramnego na toalety dla osób korzystających z dziedzińca
6. Wykonanie nowej nawierzchni dziedzińca z ogrzewaniem podłogowym
7. Przebudowa pomieszczeń użytkowych
8. Aranżacja stałych elementów dziedzińca
9. Aranżacja 3 mieszkań dla twórców.
10. Korekta instalacji
PIERWSZA PREZENTACJA



















































