
1-hol wejściowy
2-kuchnia
3-salon
4-pokój dorosłej córki
5-gabinet
6-łazienka
7-wc
8-garderoba
9-pokój kąpielowy
10-sypialnia rodziców
11-pokój młodszej córki
12-siłownia
13-pralnia z pomieszczeniem gospodarczym
14-taras
15-taras
Projekt połączenia mieszkań innej pracowni.

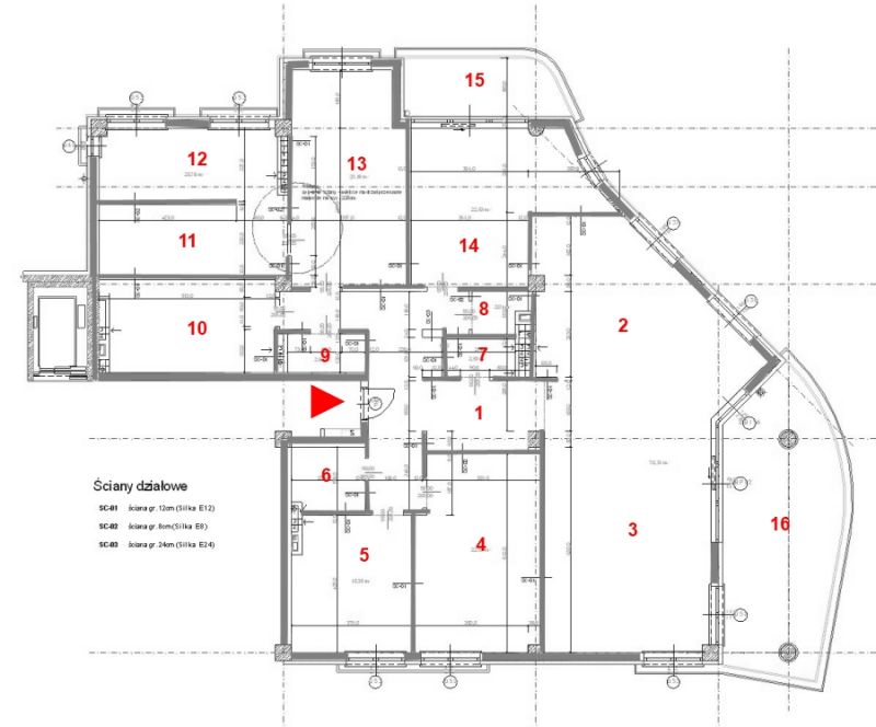
1-hol wejściowy
2-kuchnia
3-salon
4-pokój dorosłej córki
5-gabinet
6-łazienka
7-wc
8-pralnia
9-garderoba
10-łazienka
11-garderoba
12-siłownia
13-sypialnia rodziców
14-pokój młodszej córki
15-taras
16-taras