ARTTU Pracownia Architektury
Pomiń nawigacje
  • start
  • projekty
  • konserwatorskie
  • archiLektura
  • publikacje
  • arttu
  • kontakt
 

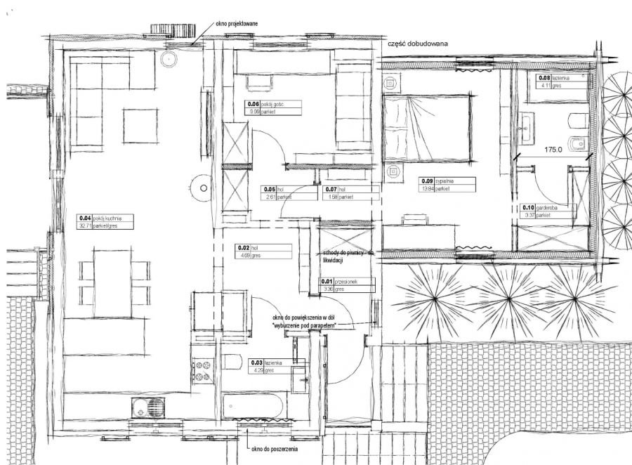
DOM POD PIASECZNEM

Parterowy domek z roku 1950, budowany przez Szwedów. Technologia szkieletowa.

Projekt rozbudowy wraz z zagospodarowaniem budynku gospodarczego na garaż i budowa wiaty.

Dom dla małżeństwa w średnim wieku. 3 pokoje, w tym sypialnia z łazienką z prysznicem i garderobą, pokój gościnny/gabinet, łazienka z wanną i pralką.

Powierzchnia domu przed rozbudową - około 60m2.

Po rozbudowie- około 80m2.

Koncepcja - grudzień 2018r.

powrót

KONCEPCJA PRZEBUDOWY I ROZBUDOWY

sloneczna 3
Widok z ulicy
rzut
kk
qw
2
3
Widok na wejście główne.
1
4

STAN ISTNIEJĄCY

sloneczna 3 0
IMG 7747.JPG
IMG 7740.JPG
IMG 7742.JPG
IMG 7759.JPG

o ile nie zaznaczono inaczej wszystkie materiały tu zawarte: © 2001 - 2025 arttu

Darmowy licznik odwiedzin